Артикул: AA 1591
€ 300 000
1 Спальни
1 Ванные комнаты
70 Площадь, м²
  • Парковочное место
  • Терраса/балкон
  • озеро

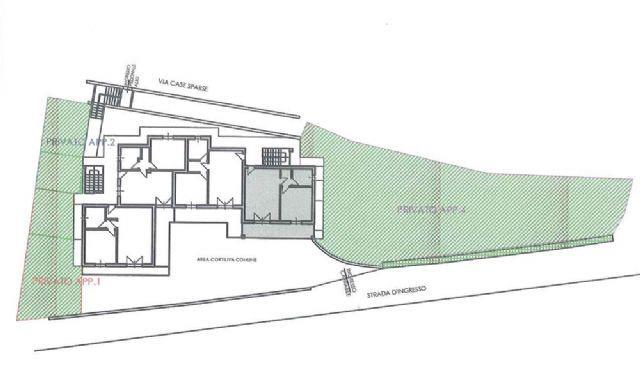
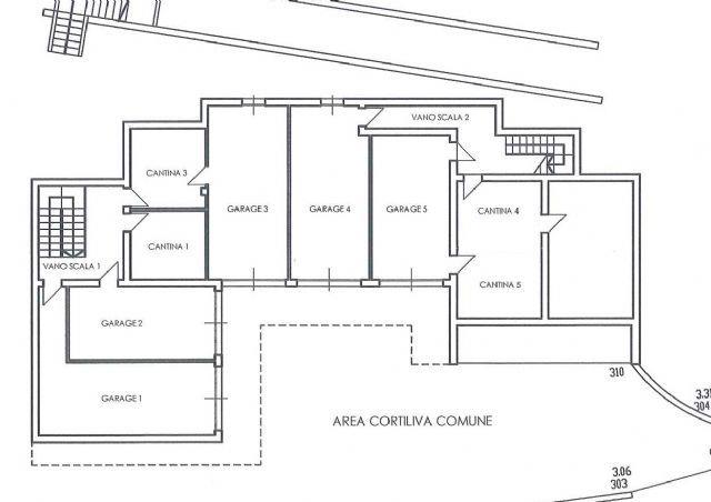
На первом из холмов Стрезы в небольшом четырехквартирном здании мы предлагаем апартаменты с видом на озеро и садом. Планировка объекта включает гостиную, кухню, террасу, ванную комнат и спальню. Есть два очень больших погреба и 2 гаража. Также в собственность входят 200 кв.м. сада, где можно сделать бассейн или беседку с видом на озеро.
Площадь апартаментов — 55 кв.м., есть возможность расширить на 40 кв.м.

Имеется гараж и два погреба площадью около 55 кв.м.

Здание находится в зеленой зоне, где можно прогуляться, а центр Стрезы располагается примерно в 2 км.

Достопримечательности

Пейзаж Борромейских островов: «Боги, рожденные из вод озера Маджоре».

Жизнь в Стрезе открывает поистине уникальную возможность: вас просто очарует красота трех небольших островов, которые царствуют на озере Маджоре. Это небольшой архипелаг, а точнее, целый рай.

Остров Bella (Красивый), пожалуй, красноречивее всего напоминает о богатом прошлом этих мест: здесь располагается величественный дворец в стиле барокко с шикарным интерьером и потрясающими садами, которые окружают его.

После роскошного дворца вы окунетесь в безмолвие и обаяние тропической земли: Остров Матери (самый большой из трех) похож на огромный сад, в котором обитают удивительные животные и растут самые красивые цветы. Это волшебный цветочный сад, окруженный озерами, посреди которого расположены красивые и элегантные здания.

Остров Superiore (Верхний), также известный как Остров Рыбаков, поражает своей простотой и деревенским стилем архитектуры. Он опутан густой паутиной улочек, которые обнимают его, будто мать обнимает своего ребенка.

Однако пейзажи Стрезы не ограничивается прекрасными Борромейскими островами: панорамный вид поражает своей неохватностью. На Ломбардском побережье виды простираются от Серро и Лавено до Рокка ди Кальде; на Пьемонтском вы увидите Пунта-делла-Кастаньолу, Палланцу, слева — Красную гору, а после упретесь взглядом в гору Оссола. Волшебный пейзаж!

Окрестности

Чудесные виды озера Маджоре не заканчиваются достопримечательностями коммуны Стреза — это лишь отправная точка для путешествия по волшебным местам озера. Прежде чем отправиться по берегам Маджоре, обязательно прокатитесь по канатной дороге, чтобы полюбоваться панорамами Монте Моттароне, где расположены великолепные лыжные трассы.

Двигаясь к северу, за пределы Бавено, вы легко сможете добраться до района Палланца — тихого туристического центра, в котором построена удивительная вилла Таранто, известная своим уровнем комфорта и прекрасным садом со множеством цветов и редких растений.

Продолжая движение по озеру, вы попадете в прекрасную деревню Каннеро-Ривьера, пронизанную солнечным светом. Солнце освещает древние крепости и замки Каннеро, которые возвышаются на небольшом архипелаге из трех островков перед деревней. После этого вы окажетесь в последнем перед границей со Швейцарией старинном городке — Каннобио, который может похвастаться одним из самых красивых берегов.

К югу расположен городок Арона — оживленный туристический и коммерческий центр, где можно полюбоваться на скалистом утесе на другом берегу озера красивым средневековым замком Рокка д'Ангера.

В коммуне Джиньезе, напротив, вы увидите невероятную панораму центрального бассейна озера Маджоре. Купив один из самых красивых домов на озере Маджоре, вы всегда сможете наслаждаться этими видами, а также совершать приятные прогулки и пользоваться возможностями, которые предлагают близлежащие Милан и Швейцария.

Класс энергопотребления:

NC

  • A+
  • A
  • B
  • C
  • D
  • E
  • F
  • G

657,4947 квт * ч/м² в год

Тип недвижимости: Квартира
Расположение: Озеро Маджоре (Lago Maggiore) | Стреза (Stresa)

Звоните нам, мы поможем подобрать подходящий вариант

+7 495 118-44-48

Написать продавцу

Все данные конфиденциальны и служат только для связи менеджера с вами. Политика конфиденциальности.

 

Похожие объекты

Больше похожих объектов
Подбор недвижимости в Италии: +7 495 118-44-48
Задать вопрос